ODABERITE RUBRIKU
ELBA

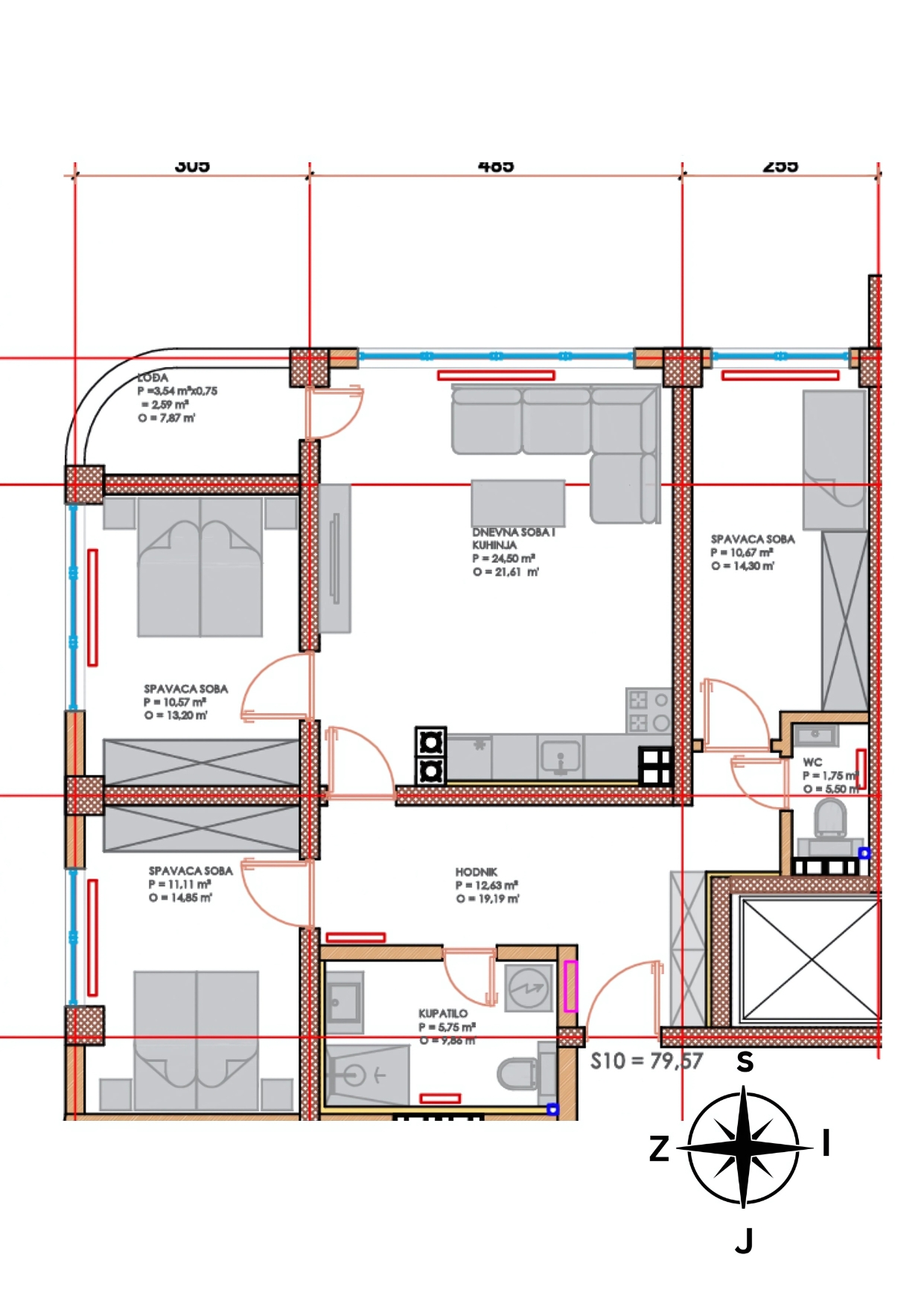
Stan br. 150 TCT Tower Sjenjak Tuzla 79.57 m2

Cijena na upit

Stanje
U izgradnji
Vrsta oglasa
Prodaja
Tip nekretnine
Stanovi
Broj soba
4
Kvadratura
79,57 m²
Opremljenost
Nenamješten
Sprat
15
Grijanje
Centralno (gradsko)
Karakteristike
Garaža
Kablovska TV
Klima
Ostava/špajz
Plin
Struja
Uključen trošak režija
Video nadzor
Voda
Alarm
Internet
Kanalizacija
Lift
Parking
Podrum/Tavan
Telefonski priključak
Blindirana vrata
Za studente
Balkon
Osobine
Godina izgradnje:
Broj kupatila: 2
Vrsta poda: Parket
Namješten: Nenamješten
Kućni ljubimci: Da
Adresa: Branilaca BiH 11 - Tuzla
Primarna orijentacija: Sjeverozapad
Naslov oglasa: Stan br. 150 TCT Tower Sjenjak Tuzla 79.57 m2
Kategorija: Stanovi i apartmani
Podkategorija: Prodaja
Sekcija: Stanovi
Detaljan opis

STAN BROJ 150

Površina: 79.57 m2

Broj stana: 150

Spratnost: 15

Stanje: u izgradnji

Orjentacija: S/Z

Početak izgradnje: 2025 godina; rok izgradnje 3.5 godina

Predstavljamo Vam novi objekat "TOWER-TCT" smješten u jednom od najpoželjnijih naselja - Sjenjak. Naš cilj je da Vam ponudimo dom u kojem ćete se osjećati sigurno i ugodno, uz garanciju da je svaka faza izgradnje provjerena stručnjacima s dugogodišnjim iskustvom. Novi stambeno - poslovni objekat je mjesto koje nudi:

  • Vrhunsku gradnju s pažljivo biranim materijalima
  • Poslovne prostore za razvoj biznisa
  • Podzemna i vanjska parking mjesta
  • Energetski efikasna rješenja za uštedu i komfor

Naselje Sjenjak u Tuzli pruža idealan balans između porodičnog okruženja i blizine svih potrebnih sadržaja - škola, parkova, prodavnica i saobraćajne infrastrukture.

Stanovi će biti izgrađeni po principu ključ u ruke. U ponudi za prodaju su stanovi kvadrature od: 28 m2 - 98 m2

  • struktura objekta: -2, -1 + suteren + prizemlje + 21 etaže
  • struktura stanbenih jedinica: garsonjere, dvosobni, trosobni i četverosobni stanovi.
  • unutarnja i vanjska parking mjesta
  • ostave

Dodatne pogodnosti: mogućnost odgođenog plaćanja

Opis nekretnine:

Prodaje se funkcionalna četverosoban stan površine 79.57 m2 u stambenom objektu "TCT Sjenjak" u izgradnji. Stan se sastoji od dnevnog boravka sa trepezarijom, kuhinje, dvije spavaće sobe, dječije sobe, kupatila, dodanog odvojenog wc-a, hodnika i lođe.

Kontakt za prodaju
Agent: Asmir Tabaković
Telefon: +387 61 102 528
E-mail: nekretnine@drampek.org
Ugovor br: Nije dostupno

Cijena na upit

Prodavac
Silver
  • Medalja: Silver
  • Registrovan kao korisnik www.superstan.net 2025-08-03 10:48:18
Radno vrijeme
Ponedjeljak od 08:00 do 16:00
Utorak od 08:00 do 16:00
Srijeda od 08:00 do 16:00
Četvrtak od 08:00 do 16:00
Petak od 08:00 do 16:00
Subota od 08:00 do 16:00
Nedjelja ZATVORENO
O prodavcu
Medalja: Silver
Registrovan kao korisnik od 2025-08-03 10:48:18

Drampek je porodična firma koja je se počela prvobitno baviti početkom 90-tih godina uvozom prehrambenih proizvoda i distribucije istih na BiH tržištu.

Mi spadamo u jedne od prvih distributivnih firmi u BiH, pored distribucije se bavimo proizvodnjom, uvozom, izvozom i ugostiteljstvom.

Marketing prodavca
Banner prodavača
Najnoviji oglasi prodavca

Stan br. 113 TCT Tower Sjenjak Tuzla 28.42 m2

Cijena na upit

Stan br. 204 TCT Tower Sjenjak Tuzla 45.07 m2

Cijena na upit

Stan br. 50 TCT Tower Sjenjak Tuzla 98.38 m2

Cijena na upit

Objava: 03.08.2025 12:15 / Zadnja izmjena: 24.04.2026 00:54
Pregledi danas: 0 / Ukupno pregleda: 154
U obzir se uzimaju samo pregledi različitih korisnika. Uzastopni pregledi istog korisnika se ne uzimaju u obzir u statističkim mjerenjima.